Atm uređaji
Uvod
Nivo efikasnosti opreme za proizvodnju toplotne energije sagorevanjem zavisi od kapaciteta jedinice. Ovo
znači da proizvodni proces za potrošača sa promenjivim zahtevom se izvršava sa većom potrošnjom primarnih
goriva (ugalj, gas itd). Ova činjenica je od posebnog značaja kod termotehničkih instalacija (grejanje, ventilacija, itd) gde se radi sa toplom vodom i čija potrošnja se menja praktično od nule do maksimalne vrednosti i gde najveći deo vremena instalacija radi sa znatno manjom potrošnjom od instaliranog kapaciteta kotlova. Ova činjenica se
najbolje vidi ako se uporede godišnje vrednosti Vk efikasnosti kotlovskog postrojenja i instalacija efikasnosti kotla Vi.
Na primeru tečnog / gasnog kotla:
Vk = cca 0,9
Vi = cca 0,7
na primeru kotla na ugalj:
Vk = cca 0,8
Vi = cca 0,55
Da bi se podesila proizvodnja i potrošnja tople vode, pored drugih metoda kao dodavanje industrijskih
kotlova, gorionika i dr, verovatno najefikasnija je upotreba akumulatora, jer:
– primena akumulatora je najpovoljniji način, bez obzira na nivo potrošnje
– višak proizvedene energije se skladišti u akumulatoru, tako da u vreme zastoja proizvodnje (prestanka
rada bojlera, peći) može da se dostavi potrošaču.
Pomenuti primeri pokazuju jednu od mogućnosti primena akumulatora. Za ovakve i slične namena Termo
Simax nudi Atm uređaj.
Sastav, struktura i povezivanje
Atm uređaji su čelične posude u koju je ugrađena membrana, koja razdvaja prostor suda na dva kompatibilna dela. Prvi deo je ispunjen sa podhlađenom vodom (voda koja je prošla kroz cikluse hlađenje do potrošača), a drugi deo se puni sa toplom vodom (voda koja je prošla kroz cikluse grejanja - kotao), tako da ne mogu značajno uticati međusobno.
Naravno, postavlja se pitanje, zašto membrane u posudu, a ne uobičajni rezervoari tople vode? Odgovor je dat razmatranjem šeme cirkulacije tople vode. Naime, sistem se sastoji od dva kruga cirkulacije tečnosti na različitim nivoima temperature:
– krug tople vode koji je prošao izvor toplote,
– krug povratne podhlađene vode koja je prošla potrošača.
Za posude bez membrane, ovi krugovi sastaće se na istom mestu, što dovodi do velikih teškoća u procesu zagrevanja i grejanje. Takođe, praktično je nemoguće da se promeni tečnost u celom obimu sistema u slučaju istovremenog protoka vode. Iz tih razloga, akumulatori toplote bez membrane, nisu upotrebljivi, što je dovelo do povlačenja iz upotrebe u energetici. Postavljanje membrane u akumulatorima rešava ove probleme.
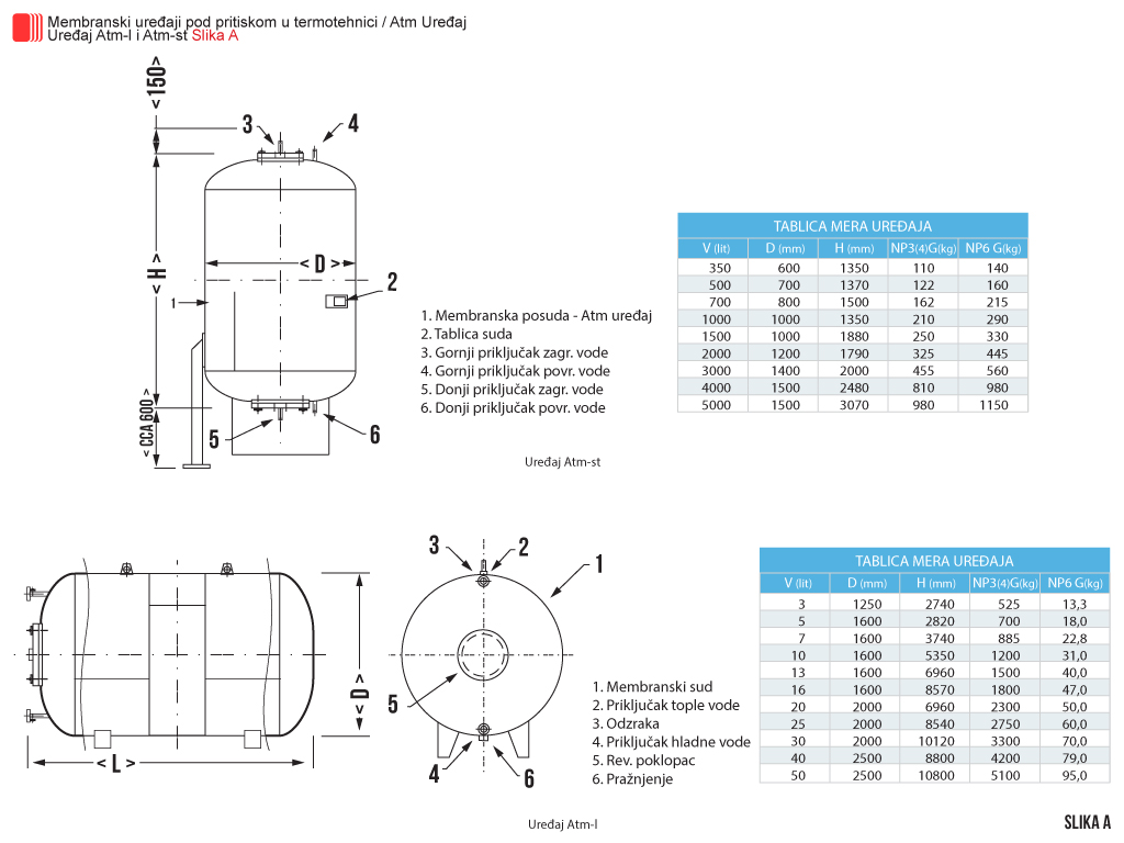
Atm uređaji su proizvedeni kao sudovi čelične konstrukcije u vertikalni položaj od 350 litara do 5000 litara, i horizontalni od 3m³ do 100m³ zapremine, za nominalni pritisak NP4 Bar (druge veličine i pritisci - na zahtev). Membranske posude za vodu temperature do 110°C (više temperature na zahtev). Uređaji imaju revizioni otvor kroz koji se može intervenisati i po potrebi zameniti membrana. Uređaji su izolovani i zaštićeni od spoljnih uticaja u zavisnosti od lokacije (polaganje: ukopani, poluukopani, nadzemna instalacija, eksterijer, enterijer i sl).
Gubici Termo–Simaxovih uređaja su od 3% do 4% godišnje potrošnje. Izgled, dimenzije i mere uređaja, kao i
povezivanja mogu se videti na slici A.
Način rada
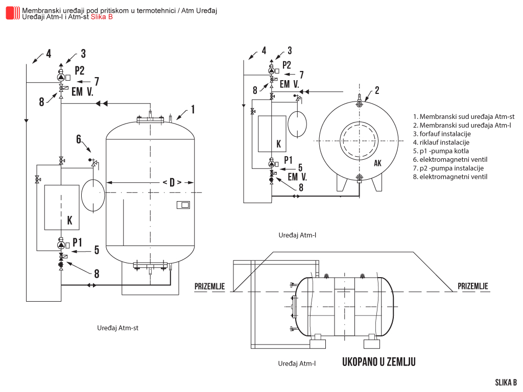
Uređaji Atm se priključuju paralelno sa instalacijom potrošača slika B i njihov rad u sklopu energetike uklopljen je u dva cirkulaciona kruga i regulisan sa dva regulaciona kola, od kojih jedno reguliše punjenje akumulatora (krug kotlova), a drugo potrošnju (krug potrošača). Rad se odvija na taj način što kotlovi distribuiraju toplu vodu jednovremeno i potrošačima i akumulatoru, odnosno sav višak toplote koji je veći od momentalne potrošnje skladišti se u prostor akumulatora sve dok se on ne napuni, kada prekidaju rad (dejstvom radnog termostata – gas, nafta, ili prekidom loženja – ugalj), da bi dalje potrošači bili napajani isključivo sa akumulatora, sve dok se ovaj ne isprazni, a onda se ciklus ponavlja.
Izbor veličine akumulatora i primena
Izbor veličine akumulatora je usko vezan za njegovu namenu. Naime, akumulator može biti namenjen:
– akumulaciji (časovnoj, višečasovnoj, dnevnoj, nedeljnoj potrošnji i dr.)
– uštedi primarnih goriva,
– proširenju kapaciteta postojećih toplotnih izvora,
– korišćenju otpadne toplotne energije, "peglanju" špiceva potrošnje gasa ili elektroenergije i dr.
No, bez obzira na primenu, njegov kapacitet punjenje Qak određen je sadržajem vode suda Vak temperaturom vode pri punjenju twk i srednjom temperaturom povratne vode sa potrošača tw" u toku ciklusa pražnjenja Cp:
Qak= Vak · Cp · ( twk - tw") = (W);
Cp= 1,16 W/kg, °C
Prema ovoj jednačini, a za određenu namenu, vrši se izbor veličine akumulatora. Tako su date orijentacione jednačine za izbor veličine akumulatora, proračunate za neke konkretne slučajeve primene.
Osnovne primene akumulatora u Termotehnici:
1. Smanjenje potrošnje primarnih goriva
Izbor akumulatora se vrši na bazi polučasovnog (nafta, gas) ili cca. časovnog (ugalj) kapaciteta kotla (u slučaju više kotlova najveće jedinice).
orijentaciono
– za naftu/gas Vak = cca 10 · Qk lit. za Qk = kW
– za ugalj Vak = cca 15 · Qk litara za Qk = kW
Očekivana ušteda na godišnjem nivou:
Za gas – do 15%
Za tečna goriva – do 20%
Za ugalj – do 35%
2. Primena akumulatora za korišćenje elektroenergije niže tarife (druga tarifa) kod elektrokotlova.
Izbor akumulatora na bazi sedmočasovne potrošnje na spoljnoj temperaturi od OºC do -5ºC sa maksimalnom
temperaturom vode u kotlu i odgovarajućom temperaturom povratne vode u sistemu.
orijentaciono
Vak = cca 50, Qp litara za
Qp = kW maksimalne potrošnje.
Primenom akumulatora u ovu svrhu, odnos potrošnje po višoj i nižoj tarifi, koji iznosi cca 80% prema 20%, može se preokrenuti u 20% prema 80%.
3. Primena akumulatora za "peglanje" maksigrafa pri korišćenju elektroenergije (elektrokotlovi) za grejanje u industriji
Izbor akumulatora prema letnjoj maksimalnoj potrošnji maksigrafa računatoj prema vremenu dnevnog prekida postrojenja.
orijentaciono
za rad u dve smene (prekid 8h dnevno) i letnju snagu maksigrafa Qm = kW:
Vak = cca 115 · Qm litara
Na ovaj način dobija se najjeftinija energija za grejanje objekata
4. Primena za proširenje kapaciteta postojećih kotlarnica Qkl=kW kroz produženi rad kotlovskih postrojenja u vremenu prekida rada potrošnje
Izbor se vrši prema maksimalnoj produkciji kotlarnice u prekidu rada na projektnim uslovima. Orijentanciono za svaki čas rada u prekidu rada, (za cca 12h na dan prekida), po cca 8% kapaciteta
Vak = cca 20 · Qkl litara po času rada za Qkl = kW:
Na ovaj način mogu se proširivati instalacije potrošača bez povećanja energetike, kao i vršiti prelaz sa jačih energenata (gas, nafta) na slabiji (ugalj).
5. Primena akumulatora za smanjenje participacija (investicioni troškovi) distribucijama elektroenergije i gasa kroz smanjenje prijavne snage Qjv=kW
Orijentanciono za smanjenje snage od cca 50%, (poravnjanjem sa maksimalne časovne na srednje dnevnu potrošnju i rada sa 16h na 24h proizvodnje).
Vak = cca 80 · Qjv litara za Qkl = kW:
Gornjim postupkom se smanjuje i prijavna snaga i vršna potrošnja energije, što je posebno važno kako za investitora tako i za isporučioca energije (posebno za elektroenergiju i gas). Tako na primer ako je za grejanje objekta potrebno 500kW, za koji bi se prijavnoj snazi morale platiti participacije i angažovati sredstva za mreže kao i vršna potrošnja energije, primenom akumulatora i predloženog načina rada bi se sve smanjilo za 50%.
U gornjem primeru bio bi potreban akumulator od 40m3.
Pored navedenih mogućnosti Atm uređaji se mogu primeniti i za:
– akumulaciju "otpadne" toplotne energije u industrijskim i drugim procesima u kojima ona nastaje bilo direktno vodom, bilo posredsvim prenosnika (termalno ulje, para i slično)
– za objedinjavanje više različitih energetskih izvora na potrošačima (ugalj i električna energija, ugalj i tečna goriva ili gas i slično)
– kod sagorevanja energenata sa promenjivom toplotnom moći goriva kao što su bio masa, drveni otpad i slično.
Pri projektovanju i primeni akumulatora mora se imati u vidu da manje više svi slučajevi njegove primene
traže detaljnu analizu potrošnje i da je uglavnom svaki za sebe specifičan.
Naručivanje
Pri naručivanju potrebno je naznačiti veličinu i tip uređaja, nazivni pritisak i priključke, ukoliko je prema
standardnom programu i slici A, a ukoliko nije, još i zapreminu i glavne mere. Sudovi se isporučuju bez izolacije i nju formira korisnik.